Технический дизайн

Когда нужно быстро начать ремонт!
Технический дизайн: Первый слайд
 
Рассчитать стоимость проекта

Особенности технического дизайна

В техническом дизайне прорабатывается планировка и эргономика помещения, создается необходимый набор чертежей для мастеров-отделочников, электриков и сантехников, которого будет достаточно для составления сметы и проведения ремонтных работ.

01
01
Чем отличается техдизайн от обычного дизайн-проекта

Технический дизайн — это упрощенная версия дизайн-проекта. В нем меньше чертежей (нет разверток и спецификаций), но главное — в нем не прорабатывается визуальная часть, то есть подбор цветов, фактур, материалов и мебели остается за заказчиком.

02
02
Что входит в технический дизайн-проект

Во-первых: Продуманная эргономичная планировка: расставим мебель с указанием габаритов, продумаем открывание дверей, расположение светильников, розеток, выключателей и сантехники.

Во-вторых, набор профильных чертежей, необходимых для реализации проекта, которые представлены в слайдере.

03
03
Что можно заказать дополнительно

Вы можете дополнительно заказать коллаж-концепцию на каждое помещение, на которой мы сможем проработать дизайн помещения.

Кому подойдет технический дизайн

01
Быстрее начать ремонт
Быстрее начать ремонт
Когда сроки горят, начинать нужно вчера и нет времени на разработку полного дизайн-проекта.
02
Когда планируется утилитарный недорогой ремонт
Когда планируется утилитарный недорогой ремонт
Например, вы купили квартиру под сдачу и планируете в ней не сложный ремонтом без дизайнерских ‭«излишеств‭».
03
Сами знаете, чего хотите
Сами знаете, чего хотите
Когда вы сами точно знаете, какой хотите дизайн, но вам необходима техническая документация и помощь с планировкой.
 

Получите пример проекта

Вместо лишних слов, скачайте пример технического дизайн-проекта и убедитесь сами, что это то, что вам нужно!

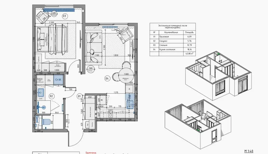
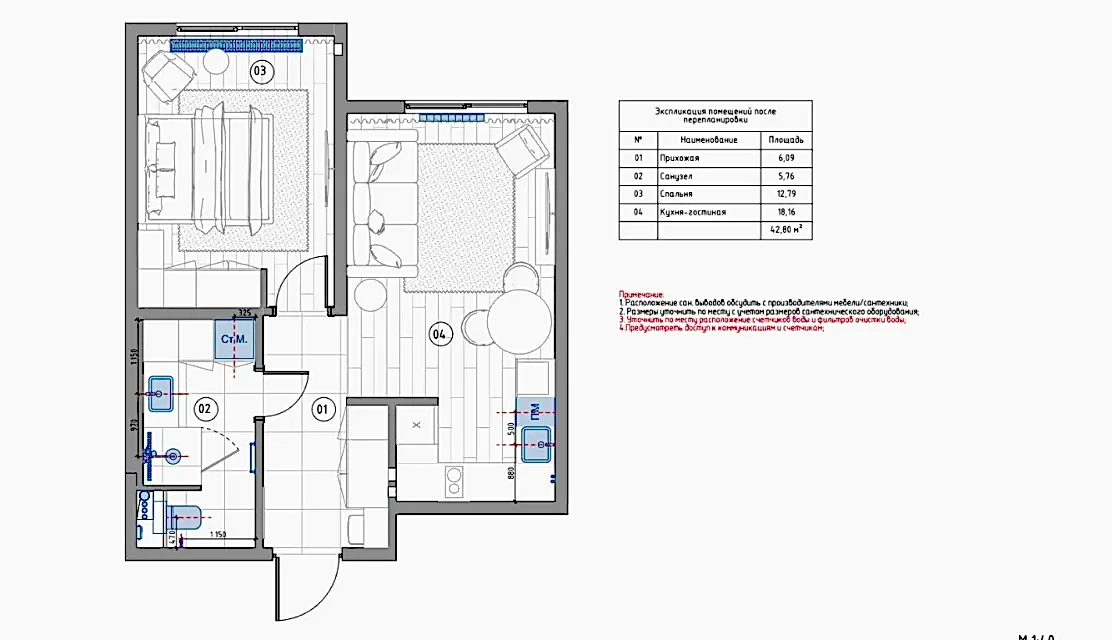
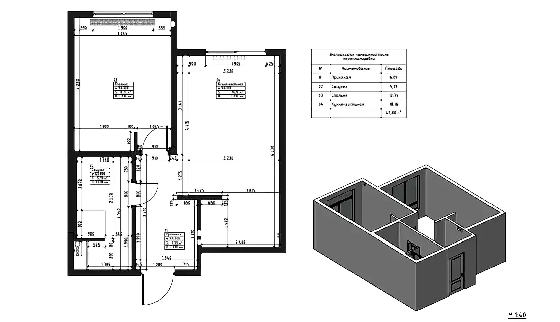
План перепланировки
План расстоновки мебели и оборудования
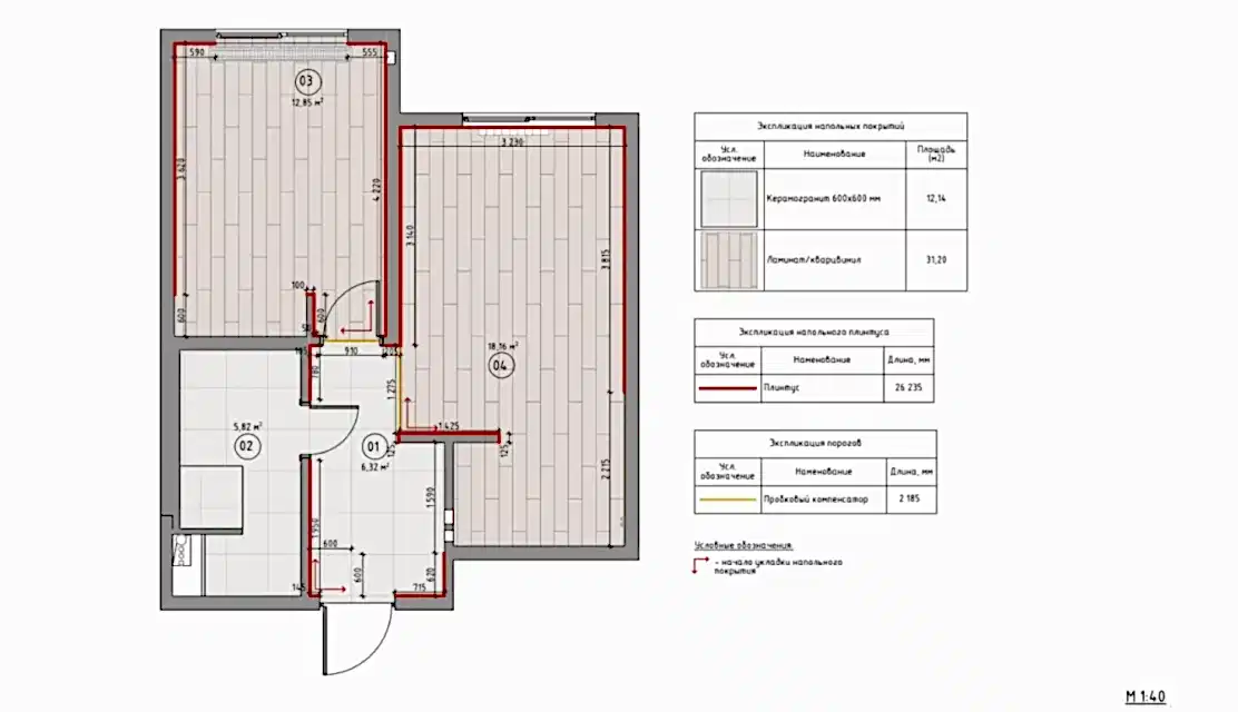
План напольных покрытий
План размещения сантехнического оборудования
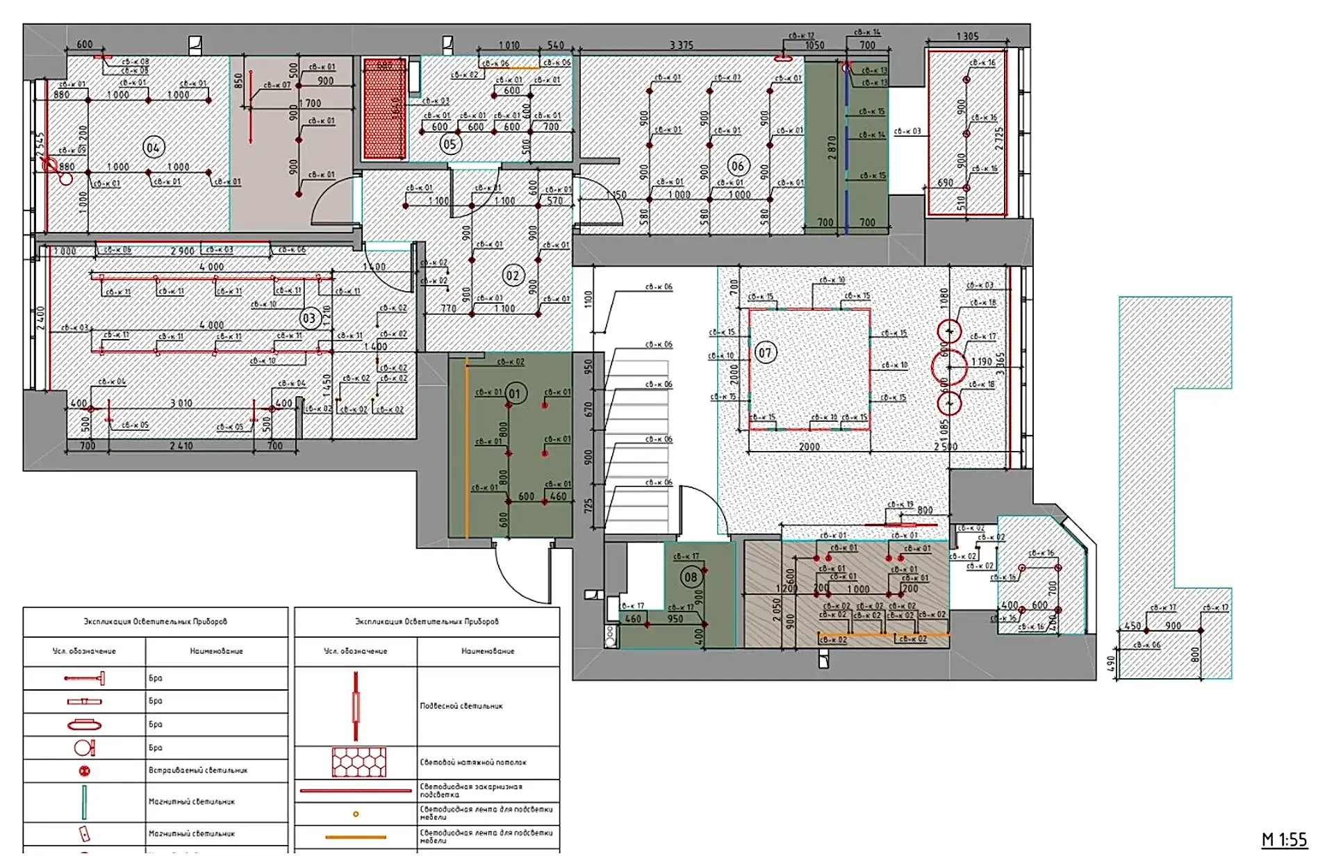
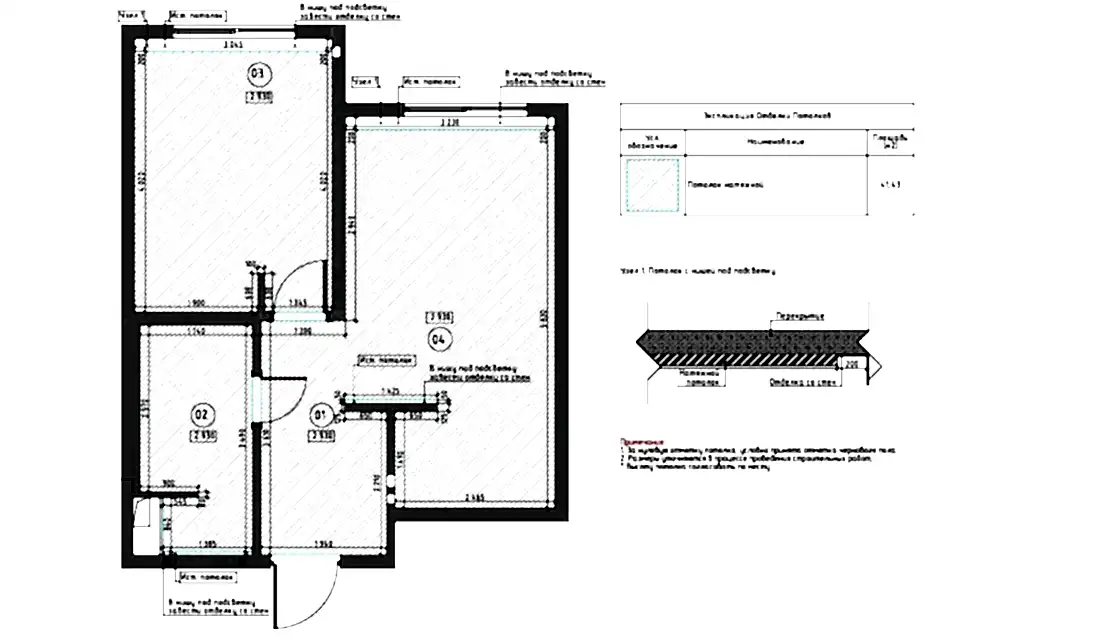
План потолочных конструкций
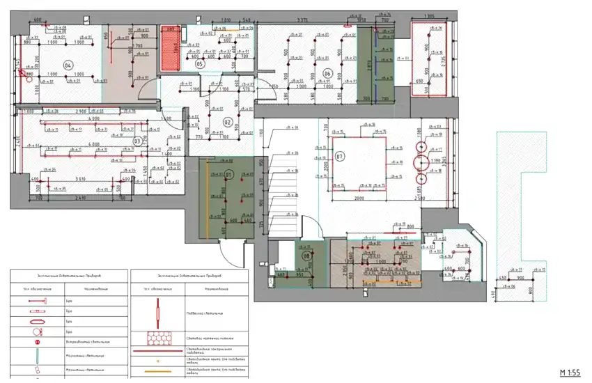
План электрики

Ответьте
на несколько вопросов

И получите расчет стоимости будущего проекта
Олег Рожнев
Руководитель студии, позвонит и все расскажет

Из чего
состоит работа

01
Заявка
Позвоните нам по телефону, напишите в мессенджеры или оставьте заявку на сайте.
02
Замеры
Наш дизайнер выезжает на объект и делает необходимые замеры помещения.
03
Техническое задание
Вы заполняете техническое задание — анкету, где есть вопросы обо всем на свете: от того, будете ли вы мыть лапки собаке, до описания всей бытовой техники, которая будет в квартире.
04
Разработка планировки
Мы продумаем все сценарии жизни и разработаем для вас несколько вариантов планировочного решения, из которых вы сможете выбрать идеальный именно для вас.
05
Техническая документация
Создаем целый пакет чертежей и планов. Все они супер подробные и понятные, по ним смогут сделать ремонт и наши, и другие бригады.
06
Выдача проекта
Передаем альбом в печатном и электронном (PDF) виде.Консультируем строителей в случае вопросов.

Оставить заявку

Телефон
Telegram
WhatsApp
Нажимая кнопку «Оставить заявку», вы соглашаетесь с Политикой обработки персональных данных